Los campos de golf de clase mundial y los parques de magia, clubes de yates de renombre y restaurantes de moda, playas vírgenes, bañadas por el sol 11 meses del año - estos son los atributos de este vivir en el sur de la costa del sol.
Los estilos arquitectónicos, las opciones de los precios inmobiliarios, la infraestructura, el estado de ánimo ... En cada una de las 12 costas españolas Costa que cuenta ... Con el fin de elegir las vacaciones perfectas y la vida, tienes que sentir el espíritu de las ciudades acogedoras y limpias, las provincias españolas.
Celebrity Real Estate en España
A principios de 2014 España se unió a la lista de los países más atractivos para la adquisición de la propiedad. Y ya que los compradores a menudo no actúan ciudadanos de a pie, y las estrellas de clase mundial. ¿Quién en realidad cayó bajo el embrujo del flamenco y la fiesta?
Complejo Residencial Regenerado en Lomas de Cabo Roig - Apartamentos Reformados
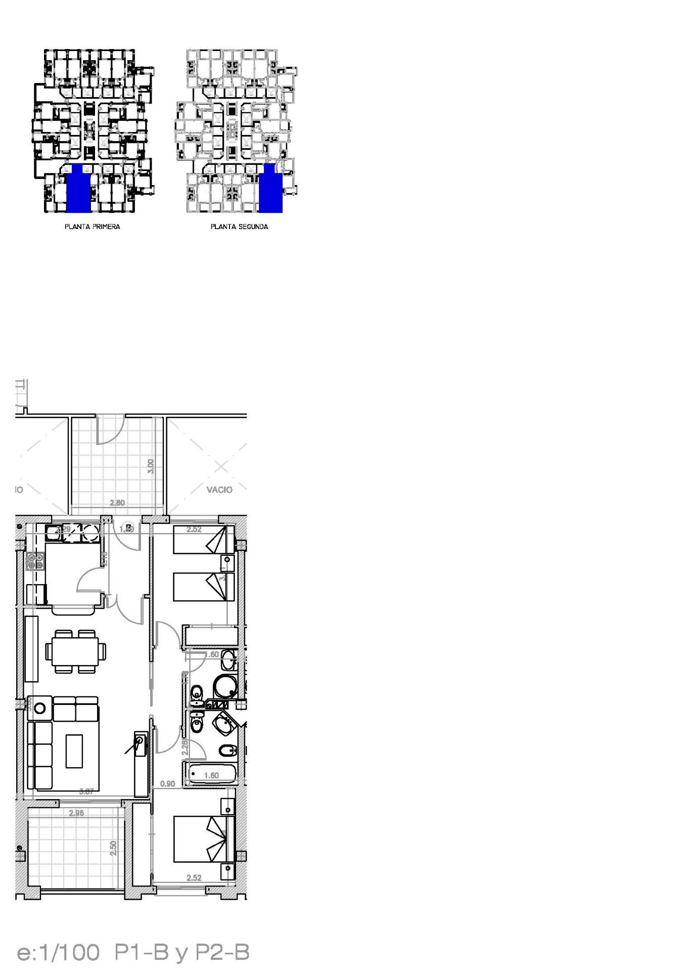
Complejo Residencial Regenerado en Lomas de Cabo Roig - Apartamentos Reformados~~Apartamentos en una ubicación privilegiada~Descubra esta oportunidad exclusiva de poseer un apartamento renovado en Lomas de Cabo Roig, una zona muy solicitada de Orihuela Costa. Este complejo residencial, construido originalmente en 2008, está siendo renovado en algunas unidades y se entregará en junio de 2025. Una casa piloto está disponible para su visualización, lo que le permite ver la calidad de los acabados de primera mano.~~Opciones inmobiliarias para todas las necesidades~Esta promoción ofrece 27 apartamentos reformados, con una gran variedad de distribuciones:~~Viviendas de 1 y 2 dormitorios, ideales para vacaciones o inversión.~Apartamentos en planta baja con jardín privado, perfectos para vivir al aire libre.~Apartamentos de planta media con amplias terrazas, ideales para disfrutar del clima mediterráneo.~Áticos con solárium privado, que ofrecen vistas abiertas y la máxima privacidad.~Cada vivienda se entrega con mamparas de ducha en los baños y cocinas totalmente equipadas con electrodomésticos, garantizando una solución llave en mano para los compradores.~~Servicios comunitarios exclusivos~El complejo residencial está diseñado para la comodidad y la relajación, con:~Una piscina comunitaria rodeada de hermosos jardines paisajísticos.~Ascensor para facilitar el acceso a todas las plantas.~Plazas de aparcamiento subterráneo opcionales disponibles por un coste adicional.~~Una ubicación inmejorable en Orihuela Costa~Lomas de Cabo Roig es una prestigiosa zona residencial situada a sólo 2 km de la costa de Cabo Roig, hogar de algunas de las playas más hermosas de Orihuela Costa. La zona está bien comunicada por carretera y ofrece una amplia gama de servicios, incluyendo tiendas, restaurantes, supermercados y centros comerciales.~~Distancias a puntos clave de interés:~~Playas de Cabo Roig y Campoamor - 5 minutos en coche.~Centro Comercial Zenia Boulevard - 5 km.~Campo de Golf Villamartín - 4 km.~Aeropuerto de Alicante - 30 minutos en coche.~Aeropuerto Murcia-Corvera - 1 hora en coche.~~Una inversión inteligente en la Costa Blanca~Con su excelente ubicación, apartamentos totalmente renovados y servicios de primer nivel, esta promoción es una oportunidad ideal para invertir, vivir de vacaciones o como residencia permanente. No deje pasar esta oportunidad única de poseer una vivienda en una de las zonas más deseadas de la Costa Blanca a un precio inmejorable.~~Póngase en contacto con nosotros para más información o para concertar una visita.~
Modern apartment with a pool and 250m from PLaya del Cura
TA1088
€ 0
Nous utilisons des cookies pour personnaliser votre expérience de navigation et le contenu qui vous est présenté, ainsi que des suggestions qui pourraient vous intéresser. Le magasin utilise à la fois les cookies nécessaires (assurant le fonctionnement du site ou facilitant son utilisation), par exemple pour stocker les paramètres de filtrage ou de connexion, ainsi que des cookies analytiques. Nous n'utiliserons et n'autoriserons aucune tierce partie à utiliser des données d'analyse statistique afin de suivre ou de collecter toute information permettant d'identifier les visiteurs de ce site. En cliquant sur "J'accepte" ou en poursuivant la recherche sur le site, vous acceptez l'enregistrement et l'utilisation de cookies. Vous pouvez annuler votre consentement à tout moment en modifiant les paramètres de votre navigateur Web et en supprimant les cookies enregistrés. Plus d'informations dans – la politique de cookie.