Los campos de golf de clase mundial y los parques de magia, clubes de yates de renombre y restaurantes de moda, playas vírgenes, bañadas por el sol 11 meses del año - estos son los atributos de este vivir en el sur de la costa del sol.
Los estilos arquitectónicos, las opciones de los precios inmobiliarios, la infraestructura, el estado de ánimo ... En cada una de las 12 costas españolas Costa que cuenta ... Con el fin de elegir las vacaciones perfectas y la vida, tienes que sentir el espíritu de las ciudades acogedoras y limpias, las provincias españolas.
Celebrity Real Estate en España
A principios de 2014 España se unió a la lista de los países más atractivos para la adquisición de la propiedad. Y ya que los compradores a menudo no actúan ciudadanos de a pie, y las estrellas de clase mundial. ¿Quién en realidad cayó bajo el embrujo del flamenco y la fiesta?
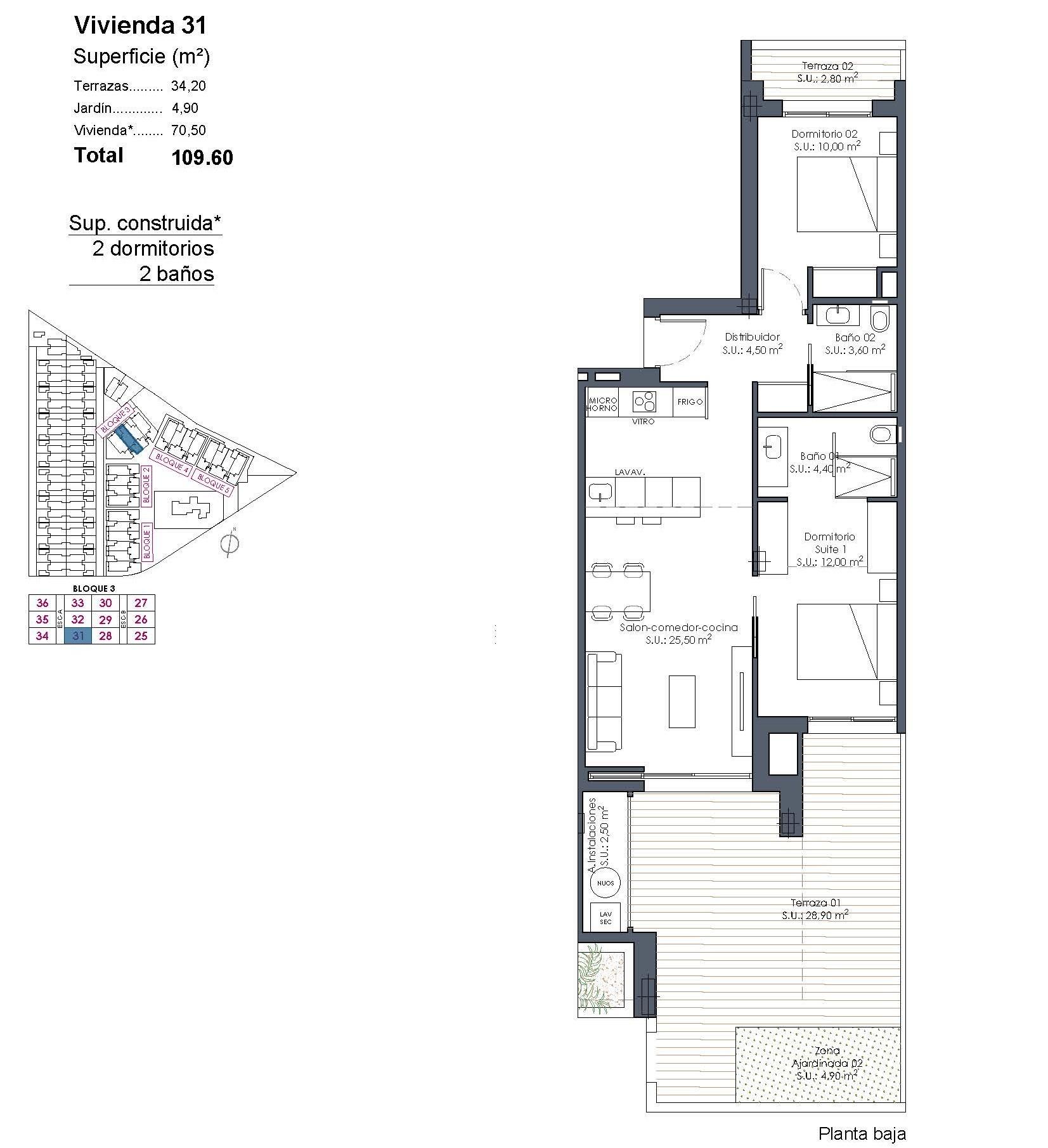
Apartamentos de nueva construcción en La Serena Golf-Los Alcázares, cerca de la playa
Apartamentos de nueva construcción en La Serena Golf-Los Alcázares, cerca de la playa~~Vida moderna frente al campo de golf en la Costa Cálida~Descubra este exclusivo complejo residencial de nueva construcción situado en La Serena Golf, en Los Alcázares. Esta urbanización contemporánea cuenta con 66 elegantes apartamentos de 2 o 3 dormitorios y 2 baños, uno de ellos en suite, diseñados para ofrecer comodidad, elegancia y un excepcional estilo de vida mediterráneo a solo 300 metros del Mar Menor.~~Los Alcázares es una encantadora localidad costera conocida por su ambiente relajado, sus playas de arena y su largo paseo marítimo. Con más de 300 días de sol al año, la zona ofrece un entorno perfecto para la vida al aire libre, los deportes acuáticos y el golf. La localidad también cuenta con una amplia selección de restaurantes, tiendas, puertos deportivos e instalaciones deportivas, lo que la convierte en un destino muy deseable tanto para la residencia permanente como para las vacaciones.~~Apartamentos con terrazas, jardines y soláriums privados~El complejo residencial ofrece varios tipos de propiedades que se adaptan a diferentes estilos de vida. Los compradores pueden elegir entre apartamentos en planta baja con jardines privados, viviendas en plantas intermedias con amplias terrazas o áticos con terrazas y grandes soláriums en la azotea.~~Los soláriums incluyen una ducha exterior y ofrecen la opción de añadir una cocina de verano y un jacuzzi privado, creando un espacio ideal para relajarse y divertirse mientras se disfruta de las vistas abiertas al campo de golf y al paisaje circundante.~~Cada vivienda ha sido diseñada con interiores luminosos y espacios diáfanos que conectan a la perfección con las zonas exteriores.~~Servicios estilo resort y zonas comunes excepcionales~Una de las características más distintivas de esta promoción es su concepto de estilo resort. Los residentes pueden disfrutar de una espectacular piscina estilo laguna de aproximadamente 190 m2 con acceso estilo playa y zonas de relax con camas balinesas.~~Las instalaciones comunes adicionales incluyen jardines paisajísticos, una zona de spa, gimnasio y sauna situados en el sótano. El complejo también ofrece un parque infantil, dos pistas de petanca y aseos comunes cerca de la zona de la piscina, creando un ambiente acogedor para los residentes y los invitados.~~Acabados de calidad y características modernas~Los apartamentos están construidos con materiales modernos y especificaciones de alta calidad diseñadas para ofrecer comodidad y estilo.~~Cocina totalmente equipada con electrodomésticos de acabado en cristal blanco~Baños con tocadores, mamparas de ducha y espejos retroiluminados~Persianas motorizadas~Paquete de iluminación básico~Aire acondicionado por conductos totalmente instalado~Plaza de aparcamiento subterráneo para cada propiedad~Aparcamiento subterráneo para bicicletas y trasteros opcionales~~Ubicación privilegiada cerca de la playa y el golf~Playa del Mar Menor a 0,3 km~Golf La Serena junto a la urbanización~Centro de Los Alcázares a 2 km~Cartagena a 22 km~Murcia a 40 km~Aeropuerto Internacional de la Región de Murcia a 30 km~Aeropuerto de Alicante-Elche a 90 km~~Las tranquilas y poco profundas aguas del Mar Menor son ideales para nadar, navegar y practicar paddle surf durante todo el año.~~Asegure su vivienda en La Serena Golf Resort~Estos modernos apartamentos combinan la vida junto a la playa, vistas al campo de golf desde la mayoría de las unidades y comodidades estilo resort en una de las zonas más atractivas de la Costa Cálida. Póngase en contacto con nosotros hoy mismo para recibir más información o concertar una visita y asegurar su nueva vivienda en La Serena Golf-Los Alcázares.~
Utilizamos cookies para personalizar su experiencia de navegación y el contenido que se le muestra, así como sugerencias que pueden ser relevantes para usted. La tienda utiliza las cookies necesarias (que garantizan el funcionamiento del sitio o facilita su uso), por ejemplo, para almacenar configuraciones de filtrado o conexión, así como cookies analíticas. No utilizaremos ni permitiremos que terceros utilicen datos de análisis estadísticos para rastrear o recopilar cualquier información que le permita identificar a los visitantes de este sitio. Al hacer clic en "Acepto" o continuar la búsqueda en el sitio, usted acepta la grabación y el uso de cookies. Puede cancelar su consentimiento en cualquier momento cambiando la configuración de su navegador web y eliminando las cookies grabadas. Más información - en la política de cookies