Los campos de golf de clase mundial y los parques de magia, clubes de yates de renombre y restaurantes de moda, playas vírgenes, bañadas por el sol 11 meses del año - estos son los atributos de este vivir en el sur de la costa del sol.
Los estilos arquitectónicos, las opciones de los precios inmobiliarios, la infraestructura, el estado de ánimo ... En cada una de las 12 costas españolas Costa que cuenta ... Con el fin de elegir las vacaciones perfectas y la vida, tienes que sentir el espíritu de las ciudades acogedoras y limpias, las provincias españolas.
Celebrity Real Estate en España
A principios de 2014 España se unió a la lista de los países más atractivos para la adquisición de la propiedad. Y ya que los compradores a menudo no actúan ciudadanos de a pie, y las estrellas de clase mundial. ¿Quién en realidad cayó bajo el embrujo del flamenco y la fiesta?
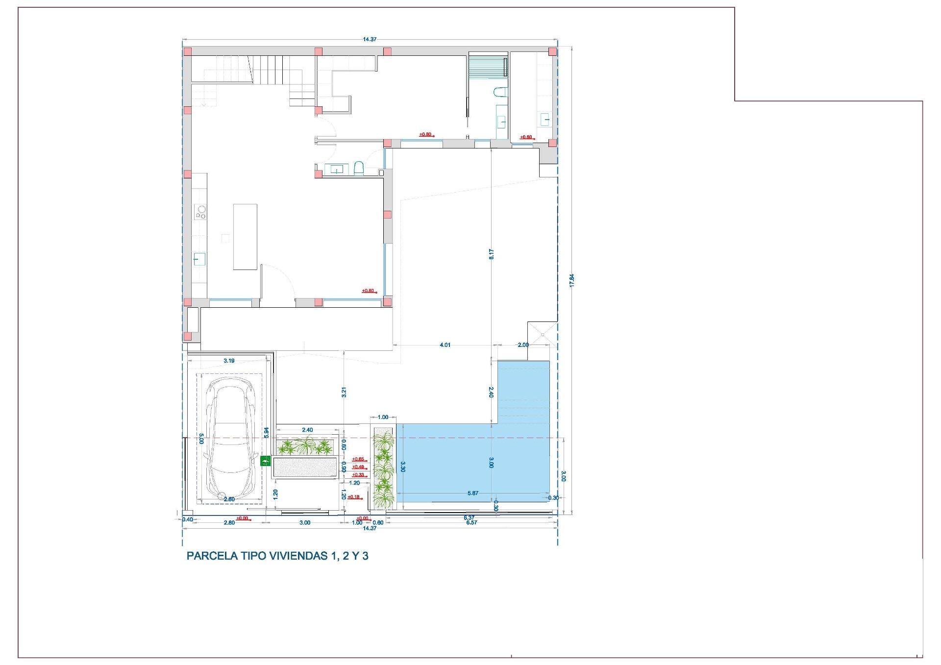
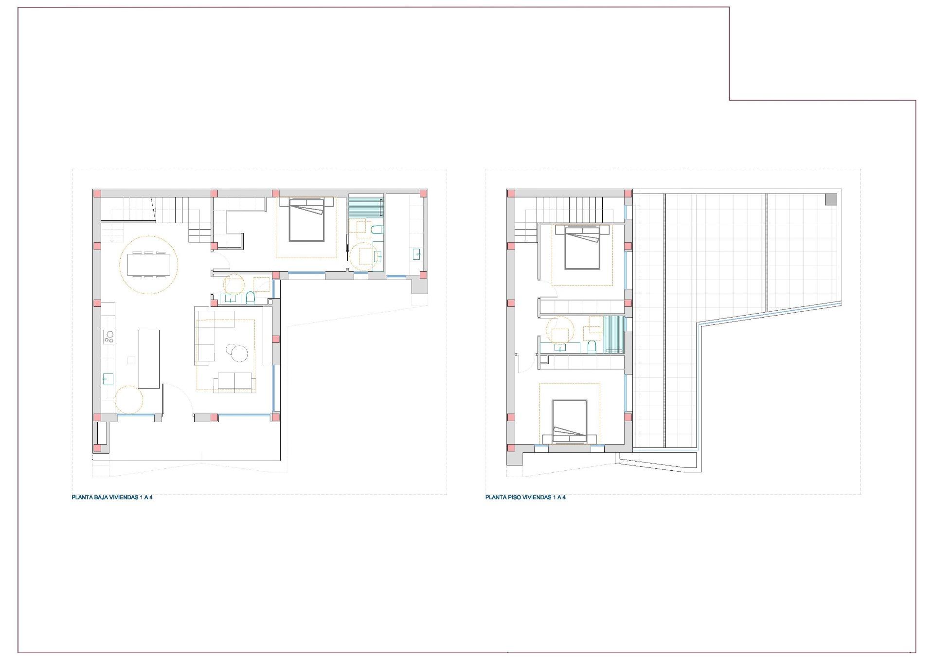
Modernas villas de nueva construcción en Dolores, Alicante
Modernas villas de nueva construcción en Dolores, Alicante~~Vida contemporánea en el corazón de la Vega Baja~Descubra esta exclusiva promoción de villas de nueva construcción en Dolores, una encantadora localidad de la Vega Baja del Segura, al sur de Alicante. Conocida por su carácter tradicional español y rodeada de exuberantes paisajes, Dolores ofrece un estilo de vida tranquilo y, al mismo tiempo, cuenta con todos los servicios necesarios a poca distancia: tiendas, restaurantes, colegios y servicios locales.~~Situada a solo 12 km de las playas de La Marina y Guardamar del Segura, y con fácil acceso a la autopista AP-7, esta zona residencial está perfectamente conectada con las principales localidades costeras de la Costa Blanca.~~Elegantes villas modernas con piscina privada~Estas modernas villas de dos plantas han sido diseñadas para ofrecer comodidad, funcionalidad y estilo. En la planta baja, encontrará una luminosa cocina abierta conectada al salón-comedor, con grandes puertas correderas que dan directamente a la terraza y al jardín privado con piscina. La planta baja también cuenta con un dormitorio con baño en suite, un aseo de invitados y una práctica zona de lavandería al aire libre.~~En la primera planta hay dos dormitorios adicionales, un cuarto de baño y acceso a una gran terraza abierta de 60 m2, perfecta para tomar el sol o relajarse mientras se disfruta del clima mediterráneo. Cada vivienda incluye aparcamiento privado dentro de la parcela.~~Acabados de calidad y comodidad moderna~Construidas con materiales de alta calidad y un diseño contemporáneo, estas villas están totalmente equipadas para vivir todo el año. Las principales características incluyen:~Carpintería exterior con rotura de puente térmico~Persianas motorizadas~Sistema de agua caliente alimentado por energía aerotérmica~Aire acondicionado por conductos totalmente instalado~Piscina privada~Aparcamiento privado y jardín ajardinado~~Los interiores combinan elegancia y funcionalidad, maximizando la luz natural y ofreciendo un entorno de vida excepcional con una fuerte conexión entre los espacios interiores y exteriores.~~Ubicación privilegiada cerca de todo~Dolores goza de una ubicación estratégica, que ofrece un equilibrio entre tranquilidad y accesibilidad.~Distancias clave:~Playas de La Marina y Guardamar del Segura: 12 km~Aeropuerto de Alicante (Elche-El Altet): 30 km (25 minutos en coche)~Aeropuerto de Murcia-Corvera: 70 km (1 hora en coche)~Campos de golf: 15 km~Ciudad de Alicante: 40 km~~Viva el estilo de vida mediterráneo en Dolores~Estas villas de nueva construcción en Dolores ofrecen la combinación perfecta de diseño moderno, comodidad y proximidad a la costa. Ideales tanto para residencia permanente como para vacaciones, proporcionan un estilo de vida mediterráneo sereno, rodeado de naturaleza y comodidades.~~Póngase en contacto con nosotros hoy mismo para concertar una visita y hacer realidad la casa de sus sueños en Dolores.~
Utilizamos cookies para personalizar su experiencia de navegación y el contenido que se le muestra, así como sugerencias que pueden ser relevantes para usted. La tienda utiliza las cookies necesarias (que garantizan el funcionamiento del sitio o facilita su uso), por ejemplo, para almacenar configuraciones de filtrado o conexión, así como cookies analíticas. No utilizaremos ni permitiremos que terceros utilicen datos de análisis estadísticos para rastrear o recopilar cualquier información que le permita identificar a los visitantes de este sitio. Al hacer clic en "Acepto" o continuar la búsqueda en el sitio, usted acepta la grabación y el uso de cookies. Puede cancelar su consentimiento en cualquier momento cambiando la configuración de su navegador web y eliminando las cookies grabadas. Más información - en la política de cookies