Los campos de golf de clase mundial y los parques de magia, clubes de yates de renombre y restaurantes de moda, playas vírgenes, bañadas por el sol 11 meses del año - estos son los atributos de este vivir en el sur de la costa del sol.
Los estilos arquitectónicos, las opciones de los precios inmobiliarios, la infraestructura, el estado de ánimo ... En cada una de las 12 costas españolas Costa que cuenta ... Con el fin de elegir las vacaciones perfectas y la vida, tienes que sentir el espíritu de las ciudades acogedoras y limpias, las provincias españolas.
Celebrity Real Estate en España
A principios de 2014 España se unió a la lista de los países más atractivos para la adquisición de la propiedad. Y ya que los compradores a menudo no actúan ciudadanos de a pie, y las estrellas de clase mundial. ¿Quién en realidad cayó bajo el embrujo del flamenco y la fiesta?
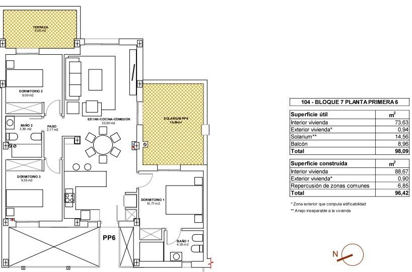
RESIDENCIAL DE OBRA NUEVA EN VERA~ ~ Residencial de apartamentos de nueva construcción en Vera a tan solo 400m de la inmensa playa de Vera llamada "El Playazo".~ ~ Las tipologías son de planta baja con dos jardines privados, uno en cada orientación, lo que permite disfrutar del sol o de la sombra siempre que se quiera dependiendo de la hora del día o de la época del año. Las primeras plantas tienen terrazas y los áticos cuentan con grandes solariums.~ ~ Todos los apartamentos tienen techos de altura extra (2,95 m) que proporcionan una gran sensación de amplitud.~ ~ La cocina se entrega totalmente amueblada y equipada integrada con el salón-comedor con zona de barra. ~ ~ Las puertas y armarios empotrados están lacados en blanco y el suelo es de madera laminada. ~ ~ El aire acondicionado frío-calor y el agua caliente son generados por un dispositivo aerotérmico DAIKIN de última generación, una tecnología que ahorra hasta un 70% del consumo eléctrico en comparación con los sistemas tradicionales. ~ ~ Todos los cuartos de baño disponen de ducha en lugar de bañera, con espejos empotrados y también con encimera de piedra y mampara de cristal en el baño principal. ~ ~ Las persianas del salón y del dormitorio principal son eléctricas, herméticas y con lamas regulables. ~ ~ Los jardines y el solarium se entregan con los suelos acabados combinando césped artificial y un bonito pavimento imitando madera. ~ ~ Cada vivienda incluye una plaza de aparcamiento exterior privada.~ ~ Cada bloque de la promoción dispone de un ascensor independiente.~ ~ Tanto los edificios como las viviendas tienen una serie de características de arquitectura bioclimática (orientación, aislamiento, ventanas y persianas, pérgolas) que permiten una óptima regulación natural de la ventilación, la temperatura y la luz a lo largo de las diferentes estaciones del año. ~ ~ Las zonas comunes están formadas por plazas peatonales y zonas verdes, con una gran piscina para adultos y otra para niños en la plaza central. ~ ~ Toda la urbanización está libre de barreras arquitectónicas para discapacitados. Aquí la tranquilidad y el relax están garantizados. ~ ~ ~ Vera es uno de los mejores lugares naturistas de Europa, reconocido por la calidad y pureza de sus aguas.~ ~ Ofrece seis kilómetros de playas (Las Marinas-Bolaga, Puerto Rey, El Playazo, Quitapellejos).~ ~ Vera limita con los famosos destinos turísticos como Mojácar y las Cuevas del Almanzora.~ ~ Complejo residencial situado a una hora y media en coche del aeropuerto de Murcia - Corvera y a unas 2 horas del aeropuerto de Alicante.~ ~
Utilizamos cookies para personalizar su experiencia de navegación y el contenido que se le muestra, así como sugerencias que pueden ser relevantes para usted. La tienda utiliza las cookies necesarias (que garantizan el funcionamiento del sitio o facilita su uso), por ejemplo, para almacenar configuraciones de filtrado o conexión, así como cookies analíticas. No utilizaremos ni permitiremos que terceros utilicen datos de análisis estadísticos para rastrear o recopilar cualquier información que le permita identificar a los visitantes de este sitio. Al hacer clic en "Acepto" o continuar la búsqueda en el sitio, usted acepta la grabación y el uso de cookies. Puede cancelar su consentimiento en cualquier momento cambiando la configuración de su navegador web y eliminando las cookies grabadas. Más información - en la política de cookies