Golf courses and world-class magic parks, well-known yacht clubs and fashionable restaurants, unspoiled beaches, sun-drenched 11 months of the year - these are the attributes of this southern living on the Costa del Sol.
Los estilos arquitectónicos, las opciones de los precios inmobiliarios, la infraestructura, el estado de ánimo ... En cada una de las 12 costas españolas Costa que cuenta ... Con el fin de elegir las vacaciones perfectas y la vida, tienes que sentir el espíritu de las ciudades acogedoras y limpias, las provincias españolas.
Celebrity Real Estate en España
A principios de 2014 España se unió a la lista de los países más atractivos para la adquisición de la propiedad. Y ya que los compradores a menudo no actúan ciudadanos de a pie, y las estrellas de clase mundial. ¿Quién en realidad cayó bajo el embrujo del flamenco y la fiesta?
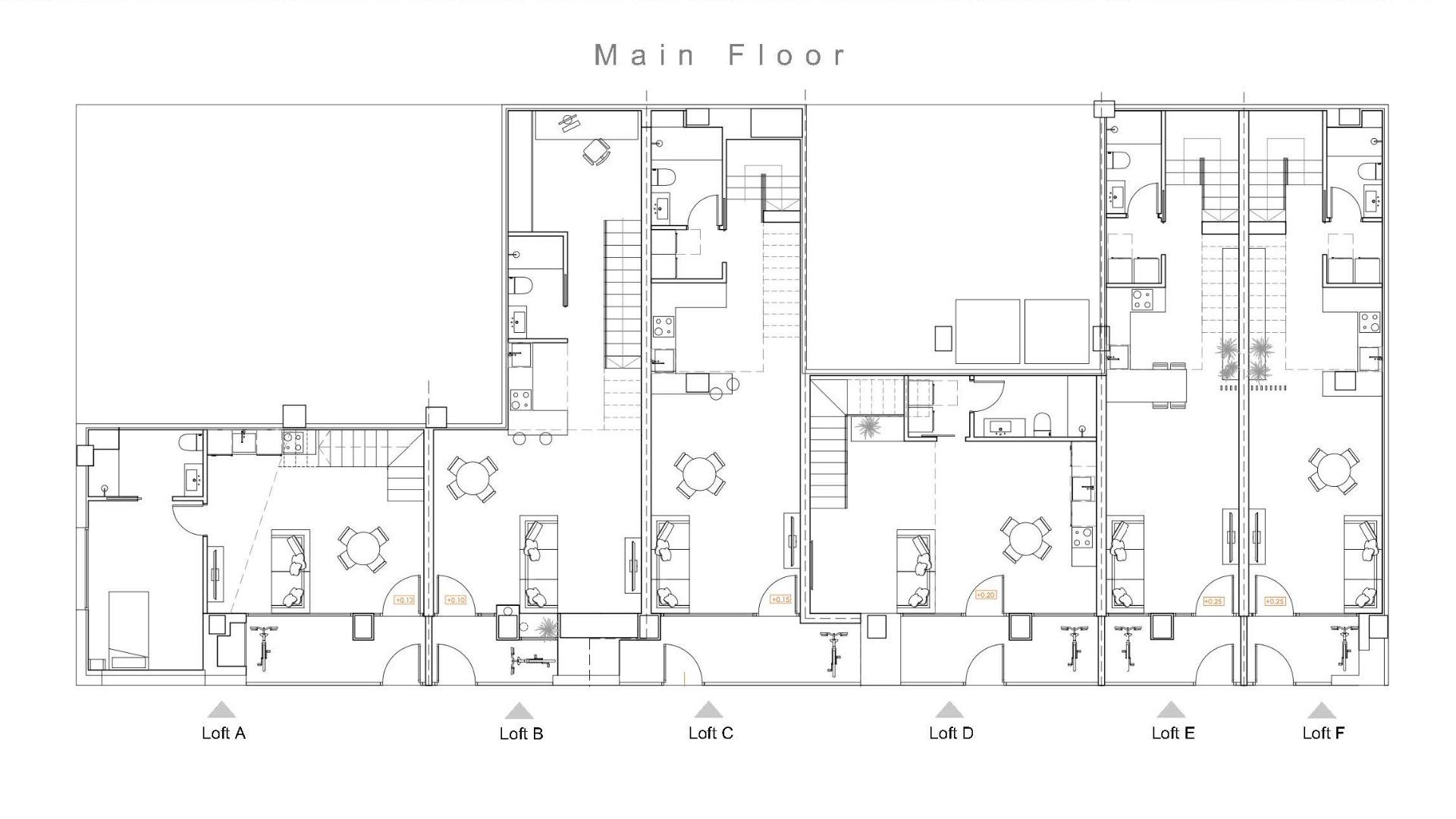
Modern Duplex Loft Apartments in the Heart of Alicante
Modern Duplex Loft Apartments in the Heart of Alicante~~Exclusive New Development in the Benalúa Neighborhood~Discover an exceptional opportunity to own a stylish duplex loft apartment in Benalúa, one of the most vibrant and well-connected districts of Alicante. This unique project transforms six unused commercial units into contemporary residential lofts, offering a modern urban lifestyle just 1 km from the Mediterranean coast. Benalúa is known for its local shops, cafés, cultural activity, and its proximity to the city center, making it a highly sought-after area for both residents and investors.~~Contemporary Loft-Style Design~Each home has been completely redesigned to offer a fresh, open and elegant living space. The promotion includes 1 and 2 bedroom duplex lofts with 2 bathrooms, all featuring impressive double height areas that enhance natural light and provide a true loft ambiance. The upper floor hosts a bedroom and full bathroom, creating privacy and comfort.~~With independent access from the street and private terrace, every apartment blends modern architecture with practical living. High-quality finishes, contemporary layouts and bright interiors make these lofts a standout choice for those seeking style and functionality.~~Comfort and Community Amenities~Residents will enjoy access to a community swimming pool located within the building, providing a relaxing and refreshing atmosphere for warm Mediterranean days. The private terraces and independent entrances add an extra layer of convenience and exclusivity.~~Prime Location Close to Key Points of Interest~Perfectly situated for both living and investment, the development is surrounded by essential services and major attractions:~Alicante Beachfront: 1 km~Renfe Train Station: 0.8 km~El Corte Inglés Shopping Center: 0.7 km~Alicante Justice Palace: 0.5 km~Alicante Airport: 12 km~Alicante Marina and Port: 2 km~Golf Courses (Alicante Golf): 7 km~~The area offers excellent public transport connections, cultural venues, green areas and easy access to the city’s beautiful beaches.~~A Smart Investment in Alicante’s Coastal Lifestyle~Whether you are looking for a primary home, a holiday property or an investment with strong rental potential, these duplex loft apartments in Benalúa represent a unique opportunity in one of Alicante’s most promising areas.~~Contact us today to reserve your exclusive loft and enjoy modern living in the heart of Alicante.~~* Access to the swimming pool pending approval by the community when the change of use of the premises is made.~
Utilizamos cookies para personalizar su experiencia de navegación y el contenido que se le muestra, así como sugerencias que pueden ser relevantes para usted. La tienda utiliza las cookies necesarias (que garantizan el funcionamiento del sitio o facilita su uso), por ejemplo, para almacenar configuraciones de filtrado o conexión, así como cookies analíticas. No utilizaremos ni permitiremos que terceros utilicen datos de análisis estadísticos para rastrear o recopilar cualquier información que le permita identificar a los visitantes de este sitio. Al hacer clic en "Acepto" o continuar la búsqueda en el sitio, usted acepta la grabación y el uso de cookies. Puede cancelar su consentimiento en cualquier momento cambiando la configuración de su navegador web y eliminando las cookies grabadas. Más información - en la política de cookies